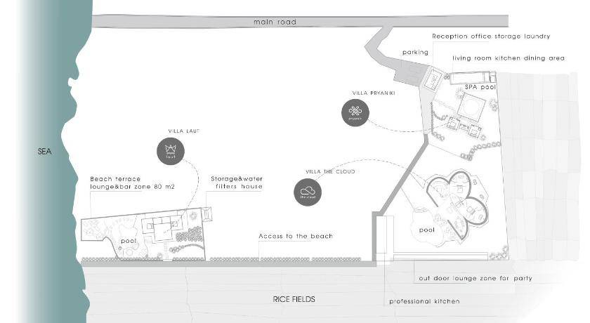
1800 m² Resort ∙ 3 bedrooms ∙ 7 guests | Resort in Tibubiu with Pool

Resort in Kerambitan, Tibubiu
Please inform in advance of your expected arrival time. You can use the Special Requests box when booking, or contact the property directly with the contact details provided in your confirmation.This property will not accommodate hen, stag or similar parties.Guests are required to show a photo identification and credit card upon check-in. Please note that all Special Requests are subject to availability and additional charges may apply.
Policy on additional beds for children
Children 0-12 year(s) old stay for free if using standard beds
Guests 13 years and older are considered adults. There must be an extra bed for children in case the standard beds cannot accommodate them.